Монтаж пружинного узла "СИЛА"Монтаж пружинного узла
2. Отмечаем место засверловки, согласно "Схемы разметки, установки крепежа".
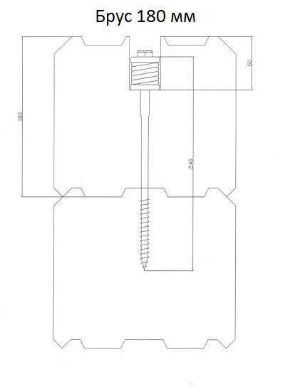
3. Надежно установив деталь на земле, определяем глубину засверливания согласно "Схемы определения глубины засверловки".
Засверливаем отверстия специальным комбинированым сверлом. Внимание! Засверливание отверстий производить только на земле!
4. Устанавливаем деталь на место монтажа, согласно сборочному чертежу.
5. Расставляем по посадочным отверстиям Пружинные узлы СИЛА.
6. Вворачиваем Пружинные узлы СИЛА до полного устранения зазора в межвенцовом посадочном месте. Схемы определения глубины засверловки
Схема разметки, установки "Пружинных узлов СИЛА" на примере развертки стен деревянного дома
Купить пружинный узел "Сила" можно здесь ! |
офис продаж в Екатеринбурге
(343) 295-85-75
Как заказать?
Вы недавно смотрели
|

.jpg)









